Anjir Residential Town
2025
- Location
- Abu Musa Island
- Client
- Ministry of Roads and Urban Development
- Size (m2)
- 24,000
- Typology
- Residential,landscape
- Status
- Idea
Anjir Residential Town
2025
- Location
- Abu Musa Island
- Client
- Ministry of Roads and Urban Development
- Size (m2)
- 24,000
- Typology
- Residential, landscape
- Status
- Idea
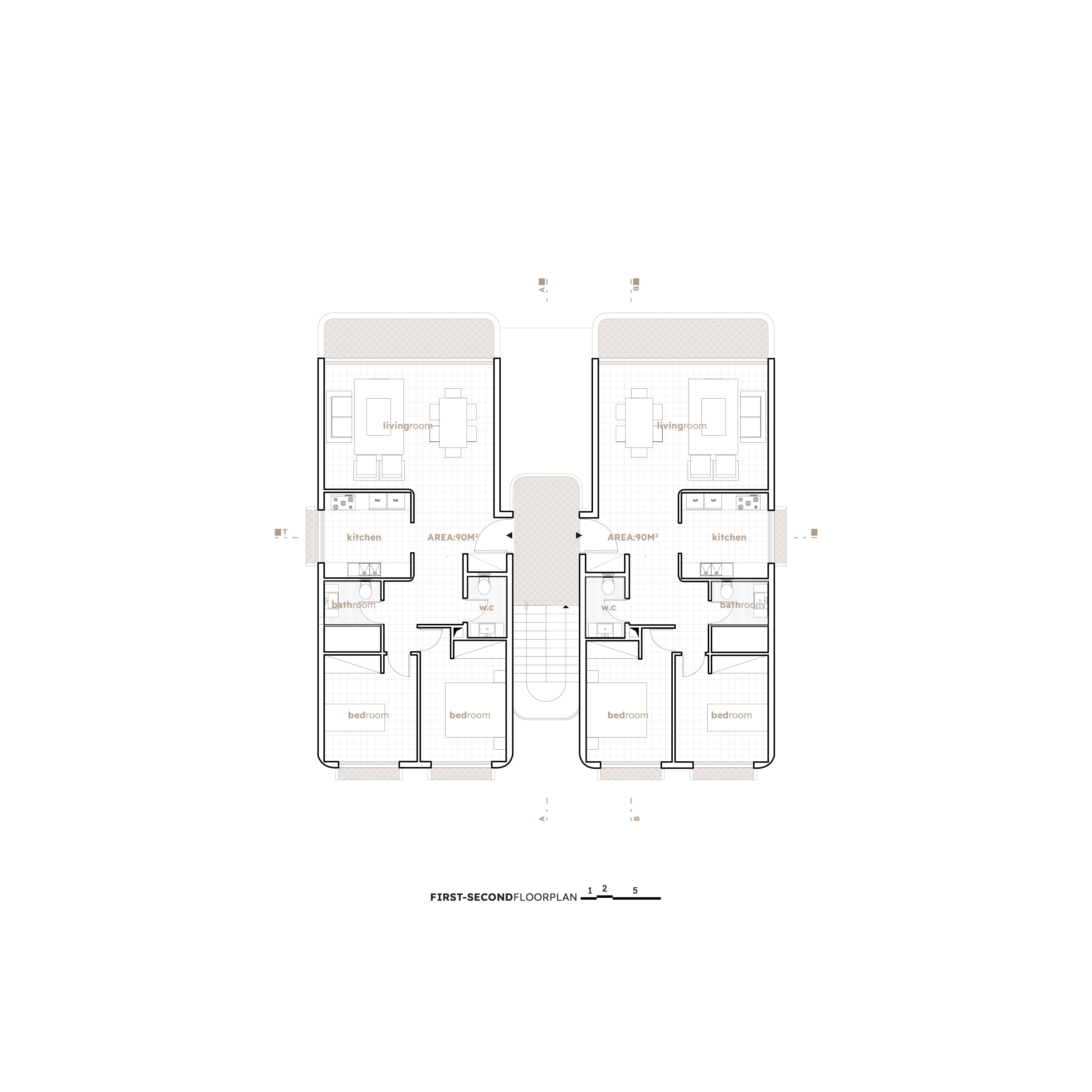
The design of the Anjir Residential Complex is situated on a non-divided plot of land measuring 24,339 square meters, approximately 350 meters from the northern shore of Abu Musa Island. The site coverage accounts for 22% of the total land area, with a building density of 80%, while 40% of the site is dedicated to open and interstitial spaces. This project, adopting a holistic approach to climatic, ecological, economic, and cultural aspects, draws inspiration from the concept of the Persian Chaharbagh. It not only seeks to express physical beauty and spatial harmony in architecture and urban design but also serves as a symbol of the connection between nature and spirituality in the way of living.
One of the main challenges of the project was to align the design criteria of the houses with the local climate and the competition’s requirements. Another key consideration was the placement of buildings and access routes to ensure proper air circulation throughout the site, allowing the sea breeze to flow inland and prevent humidity accumulation. Additional challenges included providing adequate parking, ensuring a reliable water supply for residents and green spaces, utilizing solar energy, and strategically positioning photovoltaic panels to generate part of the project’s electricity. Moreover, the selection of plant species compatible with the island’s climate and low water requirements was a crucial aspect of the landscape design, promoting environmental sustainability and efficient use of natural resources.
Adopting a holistic approach to the climatic, ecological, economic, and cultural dimensions, and inspired by the Persian Chaharbagh concept, this design goes beyond the mere expression of architectural and urban harmony. It stands as a symbol of the connection between nature, humanity, and spirituality within contemporary living.
The design process draws inspiration from the Persian Chaharbagh concept and adopts a holistic approach to climate, ecology, culture, and local economy. Spatial organization is conceived to enhance the interaction between people and nature, using vernacular principles such as shade, courtyards, and intermediate spaces to balance interior and exterior realms. Throughout the process, environmental sustainability and the use of localized materials and construction techniques serve as the core principles of the design philosophy.
This project introduces a new concept of island living, structured around the Chaharbagh spatial system and utilizing lightweight, prefabricated, and nature-reversible structures. This method not only reduces construction time and environmental impact but also enables flexibility in housing typologies and optimization of natural ventilation and energy use. The integration of greywater recycling, surface water collection, and a design approach responsive to wind and solar potential further defines the project’s innovative sustainability system.
The project incorporates new elements, objects, and tools that enhance environmental and spatial quality while preserving the island’s vernacular identity. These include lightweight prefabricated structures with eco-reversible properties, moisture-resistant façades with calculated thermal transfer coefficients adapted to the island’s climate, and photovoltaic panels for solar energy generation. Additionally, the use of movable woven canopies in the seasonal marketplace and shaded transitional spaces introduces innovative tools aimed at improving thermal comfort and promoting climatic sustainability within the design.
The landscape design of the project allocates over 30% of the total site area to open, intermediate, communal, and shared spaces, emphasizing the planting and maintenance of native and climate-adapted species such as fig, palm, neem, musk, almond, and tecoma. The project utilizes the existing desalination systems, incorporates surface water collection during cooler seasons, and introduces a greywater recycling cycle to promote sustainable resource use and encourage a culture of environmental awareness among residents. In line with the competition’s requirements and to foster a sense of vitality and belonging, a seasonal market with movable woven shading is placed along the main Chaharbagh axis, culminating in a viewing platform that frames the island’s natural scenery.
The project embraces a socially responsible approach focused on enhancing quality of life and fostering environmental awareness among the island’s residents. Through the design of shared open spaces, pedestrian paths, and a seasonal marketplace, it encourages social interaction, collective learning, and a sense of responsibility toward nature. The use of sustainable resources, water management systems, and climate-responsive design serves not only as a strategy for sustainability but also as a cultural tool for improving community awareness and lifestyle.
The design operates across multiple scales of consideration, balancing human proportions, island climate, and site organization. Spatial planning ensures harmony between residential units, open spaces, and the central Chaharbagh axis, while allowing a gradual and intuitive spatial perception from private to communal realms. This approach establishes a human-centered yet climate-responsive scale, fostering a sense of coherence between individual life, community interaction, and the natural environment.
Principal Architecture
Firouz Firouz
Amirabbas Aboutalebi
Project Manager
Zeinab Hooshangi
Project Team
Farnoush Baratlou
Mohammad Hasan Savari
Anahita Nabiri
Armin Tabrizi
Nikan Hajari
Meysam Zaffarankar
Kiana Amirmazaheri
Farnoosh Bandi
Negar Movahedi
Ecology
Bahram Zehzad
Mechanical Engineer
Saman Chegini
Urban planning consultants
Taraneh Yalda
Farnaz Farshad